Academic Work
Competitions
Independent Projects
Construction drawings
Model work
About me
Contact
Academic Work
Competitions
Independent Projects
Construction drawings
Model work
About me
Contact
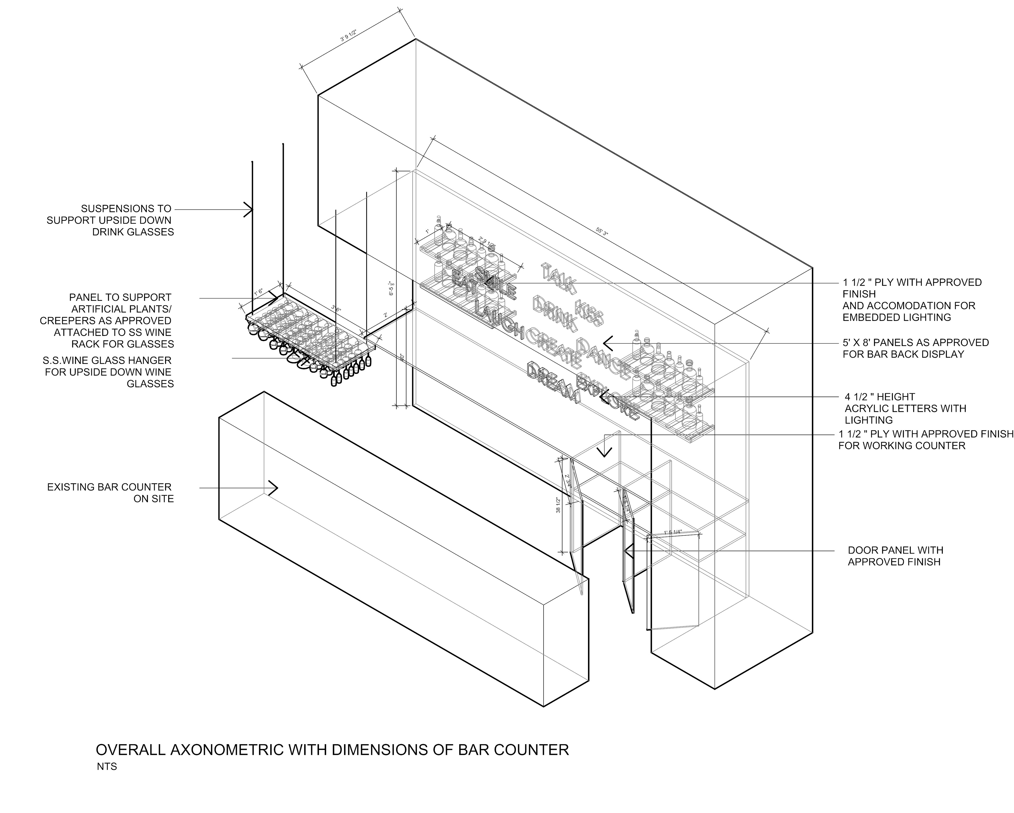
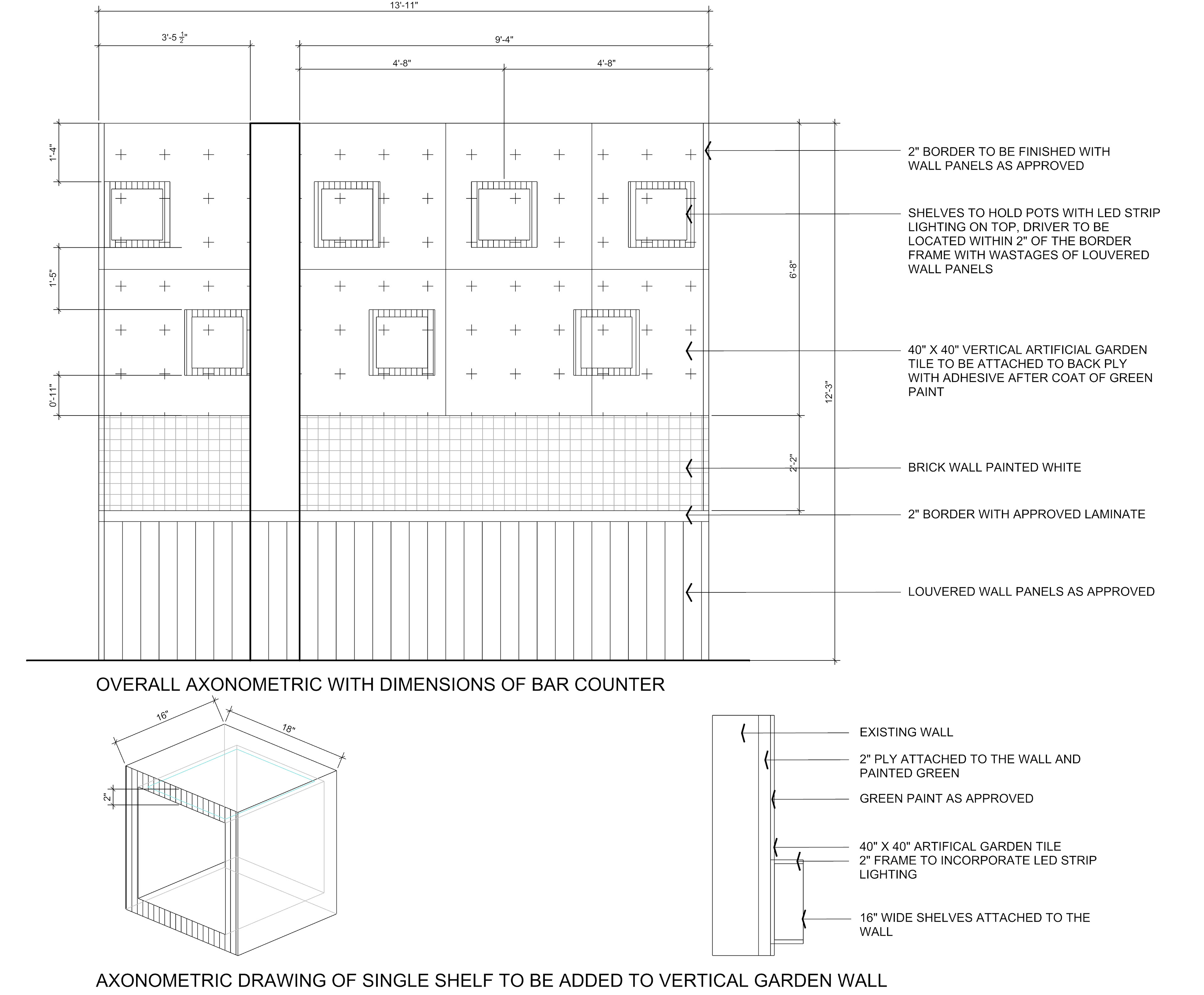
En'creo Bar and Bistro, Mumbai
Picture Credit : Tejas Oka
Picture Credit : Tejas Oka
Picture Credit : Tejas Oka
↑
Back to Top